Hamptons Pool Houses
Cabanas in East Hampton
Outdoor space should be somewhere to be enjoyed. Pool houses and cabanas provide a play zone. At home, yet separate. Made for lounging and entertaining. Close to your residence, yet psychologically distinct. A world away from the work space and everyday life.
Agencie designed and engineered two pool houses at a property in the Village of East Hampton. Set in a 8-acre estate. Designed to be a centerpiece outdoors. Engineered as jewel boxes in the estate’s crown. Fully transparent, and literally reflecting the simple elegance of their surroundings.



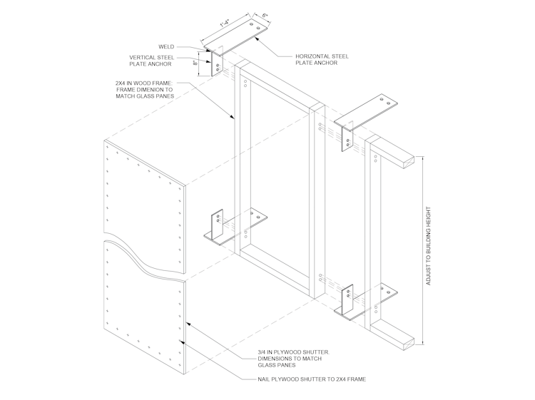
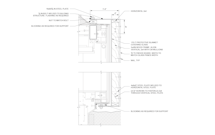
Each structure is constructed with steel and concrete on metal glass. This enables clear glass to make up entire walls and the full height doors. Inside, a fixed glass wall and full height sliding glass door encase the powder room.
Each cabana is a feat of engineering and detailing. To maximize transparency and minimize intrusive joints, a bonded acrylic connection was selected. The refractive index of acrylic also reduces distortion when viewing through the water or from the outside.
These pool houses speak to the crucial interactions within architecture and engineering. Between a structure and its surroundings. Between a space and how people engage with it.
Services
- Architecture
- Structural Engineering
- Enclosure Engineering
- Design Build
Location
East Hampton,NY
Status
Completed
Team
- Andrés Cortés, AIA
- Sarrah Khan, PE
- Nuria F. Puigcerver



